Hyppää sisältöön
Etusivu » Projektit » Asuminen » Talo Virusmäentie

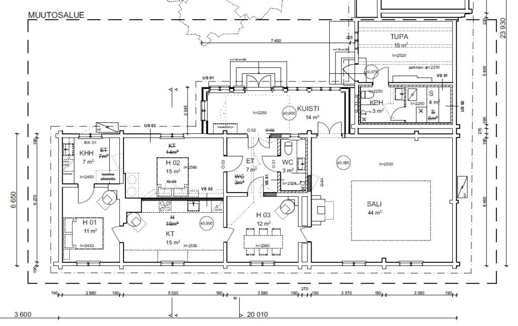
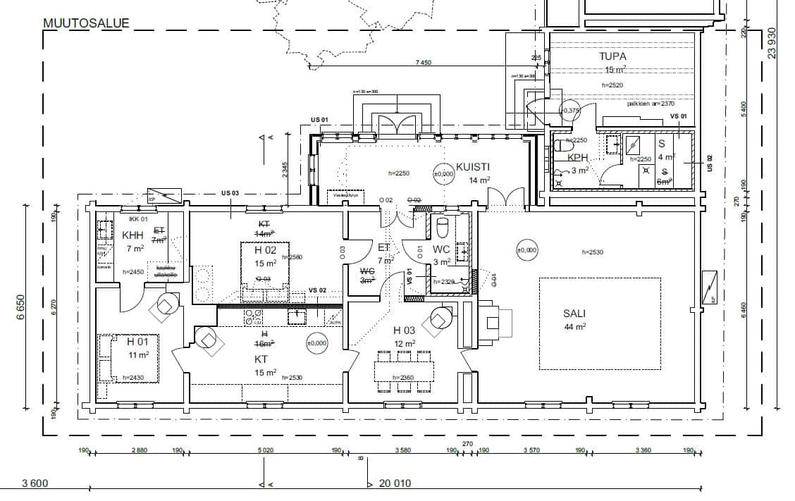
Talo Virusmäentie

Vanhan puutalon kunnostus ja muutos

2019

Turku

Suunnittelimme vanhan päiväkodin kunnostuksen asuinrakennukseksi säilyttävän korjaustavan mukaan. Myös kuistia muutettiin ja julkisivut korjattiin.

Nyman arkkitehdit Oy
Evästeistä

Nämä verkkosivut käyttävät evästeitä, jotta voimme tarjota sinulle parhaan selailukokemuksen. Eväste on tietoa, joka tallentuu selaimeesi ja se mm. tunnistaa sinut, jos palaat sivuille uudelleen. Käytämme tällaista tietoa mm. kun tutkimme kävijätilastoja: miten moni palaa lukemaan sisältöämme uudelleen, mitkä jutut ovat kiinnostavimpia jne.