Hyppää sisältöön
Etusivu » Projektit » Asuminen » Talo Trossitie

Talo Trossitie

Asuintalon kunnostus ja muutos

2018

Hämeenkyrö

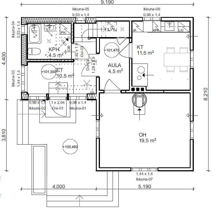
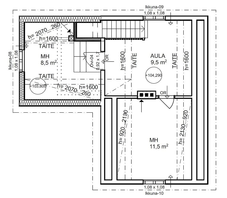
Suunnittelimme 1900-luvun alkupuolella rakennetun puutalon kunnostuksen ja muutoksen. Kylmän ullakkotilan lämmöneristämisellä asuintilaa saatiin lisää.

Nyman arkkitehdit Oy
Evästeistä

Nämä verkkosivut käyttävät evästeitä, jotta voimme tarjota sinulle parhaan selailukokemuksen. Eväste on tietoa, joka tallentuu selaimeesi ja se mm. tunnistaa sinut, jos palaat sivuille uudelleen. Käytämme tällaista tietoa mm. kun tutkimme kävijätilastoja: miten moni palaa lukemaan sisältöämme uudelleen, mitkä jutut ovat kiinnostavimpia jne.