Håkansbölen kartano
Håkansbölen kartanon päärakennuksen restaurointi ja muutos
2023-2025
Hakunila, Vantaa
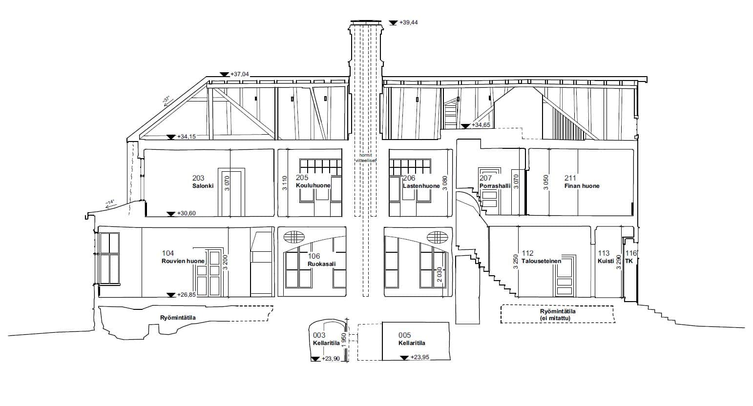
Håkansbölen eli Hakunilan kartanoalue kartanoalue on valtakunnallisesti merkittävää rakennettua kulttuuriympäristöä. Armas Lindgrenin suunnittelema Håkansbölen kartanoalueen suojeltu jugendtyylinen päärakennus on Vantaan arvokkaimpia kartanoita. Suunnittelimme päärakennuksen peruskorjauksen ja muutoksen kartanomuseoksi historiallisia ja rakennustaiteellisia arvoja kunnioittaen.

