Hyppää sisältöön
Etusivu » Projektit » Restaurointi » Keminhelmi

Keminhelmi

Museon ja kansalaistalon muutos majoitusrakennukseksi

2019

Kemi

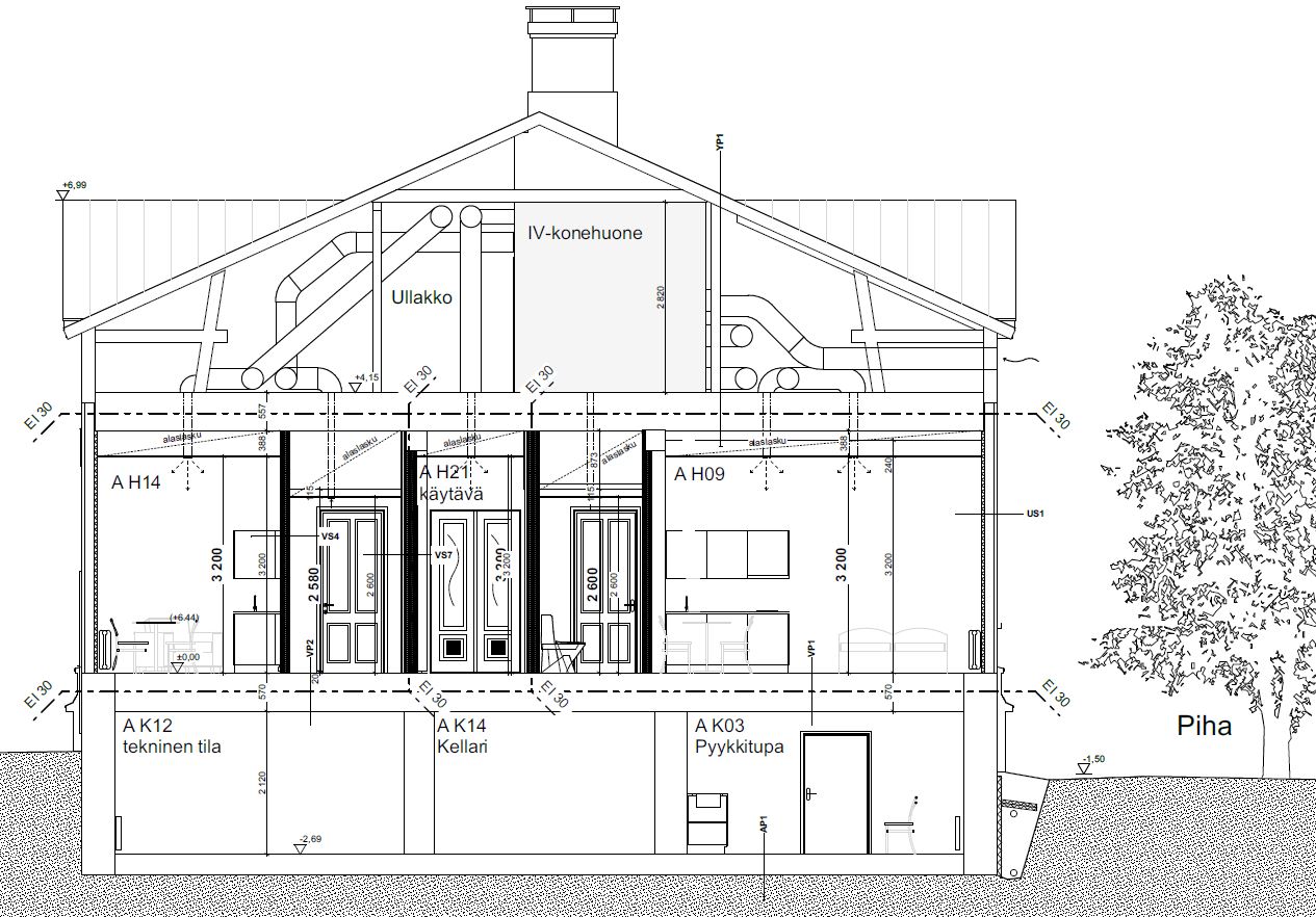
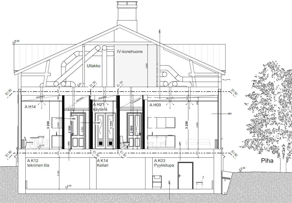
Keminhelmi on vuonna 1928 postin, pankin ja lennätinlaitoksen käyttöön suunniteltu rakennus. Pihapiirissä on myös samalta ajalta pankinjohtajan asunto. Suunnittelimme rakennusten kunnostuksen säilyttävää korjaustapaa käyttäen majoitustoimintaan soveltuviksi. Suunnitelmien pohjaksi laadimme rakennushistoriallisen selvityksen, jossa koottiin yhteen rakennusten vaiheita rakentamisesta nykypäivään saakka.

Viereinen valokuva: Kemin historiallinen museo n. 1930

Nyman arkkitehdit Oy
Evästeistä

Nämä verkkosivut käyttävät evästeitä, jotta voimme tarjota sinulle parhaan selailukokemuksen. Eväste on tietoa, joka tallentuu selaimeesi ja se mm. tunnistaa sinut, jos palaat sivuille uudelleen. Käytämme tällaista tietoa mm. kun tutkimme kävijätilastoja: miten moni palaa lukemaan sisältöämme uudelleen, mitkä jutut ovat kiinnostavimpia jne.